環境事業ENVIRONMENT BUSINESS
D.B.コレクター
(ミストコレクター)
D.B.コレクター(ミストコレクター)
サブミクロンという微細なヒュームを捕集するためのオイルミストコレクターです。
慣性衝突捕集装置では十分に捕集できないヒュームも、しっかりキャッチしてろ過することができます。
お問い合わせはこちらから
お問い合わせ窓口:環境事業第二部
TEL:03-3252-9271
D.B.コレクターの
製品概要
ヒュームを含む排気が「D.Bコレクター」に捕集されると、まず、ワイヤーメッシュエレメントによって3μm以上のミストが分離されます。
その後、特殊な「ろ材(エレメント)」を用いた二重構造のフィルターで、0.7μm以上のより細かなヒュームがろ過されます。
その後、特殊な「ろ材(エレメント)」を用いた二重構造のフィルターで、0.7μm以上のより細かなヒュームがろ過されます。
取り扱いが非常に簡単
オイルミストの捕集効率が高く、周辺が汚れない
長期間にわたりメンテナンスフリー
D.B.コレクターの構造
前段には慣性衝突捕集用デミスターを、後段にはろ布を配置しています。
ろ布室はチューブシートとホッパーで構成された二重底になっており、排気の処理風量に合わせて本数を配します。
捕集したオイルミストは、チューブシートとホッパーの2ヶ所から液封式ドレンポットに排出されます。
ワイヤーメッシュエレメントは扱いやすい寸法・重量で分割するため、外部からも容易に着脱可能です。
ろ布は円筒状で、頂部はフック取り付け式、下部はバンド締め付け式ですので、取り換えが簡単。正圧・負圧ともに使用可能で、メンテナンスに必要なデッキや階段も完備しています。
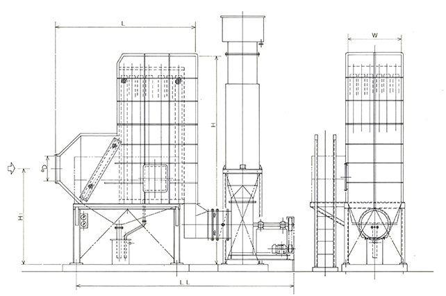
D.B.コレクター
寸法表

気流の中に障害物を設置し、物質の密度差からオイルなどを分離させる「慣性衝突理論」を活用した装置です。
独特の曲板を持つ「WPセパレーター」は粗粒の捕集に最適です。
「デミストル」は微細なオイルミストの捕集にも適しています。
拡大して図をみる
D.B.コレクターの
処理風量(一般例)

「D.Bコレクター」の他にもさまざまな工業用・産業用機器を製造・販売しています。
ご相談いただければ、こちらでご紹介した装置をお客様の使用環境に合わせて大型化・大風量へとカスタムすることも可能です。
サブミクロンのヒュームの集塵・ろ過でお困りの方は、お気軽に当社へお問い合わせください。
拡大して図をみる